Hieronder vind je de werkwijze en de modulaire woningen, allemaal geschikt voor één tot zes personen voor iedere doelgroep. Voor ieder project personaliseren we de modulaire woningen. En bij de oplevering zijn ze voorzien van wanden, badkamer en keuken. Eventueel de optie om het ook gemeubileerd op te leveren.
We maken efficiënt gebruik van de beschikbare woonoppervlakte. Juist meer ruimte op de plekken waar de bewoner veel verblijft en de ondersteunende ruimtes zoals een slaapruimte en badkamer zijn geoptimaliseerd.



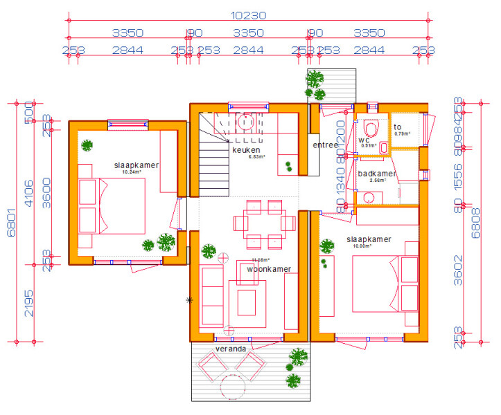
De Perflexs XL is een modulaire woning en bestaat uit een gezamenlijke eet- en zithoek, keuken en badkamer. Iedere bewoner heeft een eigen slaapruimte van 10 m2. Deze modulaire woningen kunnen gestapeld worden voor een efficiënte indeling.
Geprefabriceerde onderdelen | Materiaal |
Gevels | Houten bedekking |
Borstwering | N.t.b. |
Kozijnen | Hout |
Waterslagen | Aluminium |
Deuren | Hout |
Ramen | Hout |
Daktrim | Zink |
Dakbedekking | Vetplanten vegetatie |



Ben je grondeigenaar, ontwikkelaar, woningbouwcoöperatie of gemeente met een woonlocatie? Neem contact met ons op en we kijken samen naar de mogelijkheden.
Mail ons

De modulaire woningen van Perflexs voldoen allemaal aan het bouwbesluit voor niet-permanente locaties;
Er is een korte doorlooptijd voor de aanvraag van een omgevingsvergunning voor een tijdelijke locatie;
De tijdelijke modulaire woningen mogen volgens de wet- en regelgeving maximaal 15 jaar op één locatie staan. Daarna kunnen ze verplaatst worden naar een permanente locatie;
Alle modulaire woningen worden ontwikkeld in combinatie met gebiedsontwikkeling voor een fijne en sociale woonomgeving;
Om de impact te verkleinen denken we altijd duurzaam. Dit doen we door een combinatie van circulair- en biobased bouwen samen met natuur-inclusiviteit als doelstelling;
Alle projecten worden gepersonaliseerd met de modulaire systemen wat aansluit bij de doelgroep, dat geldt ook voor het interieur.